IndexLaserFusorGasentladungenHochspannungSonstigesLinksSicherheitImpressum

Longitudinal angeregter N2-Laser

Noch vor dem ersten funktionierenden TEA-Laser habe ich diesen longitudinal angeregte Stickstoff-Laser konstruiert. An sich ist das Projekt noch relativ einfach aufgebaut, aber die Umsetzung stellte sich dann doch als problematischer heraus als gedacht. Das vorrangige Ziel war, den Laser zum Laufen zu bringen, ohne die Ausgangsleistung und die Strahlqualität zu beachten. Der Laserkopf ist etwa 50 cm lang und wird im Superstrahlmodus bei einem Druck von wenigen Millibar (Durchflussbetrieb) betrieben.

Aufbau:

Das Grundgerüst sollte ein großes Alu-U-Profil bilden. Da kein passendes U-Profil aufzutreiben war, wurde es durch zwei Alu-Winkel-Profile und eine dünne Alu-Grundplatte ersetzt. Zur Stabilität und Isolation befindet sich oben und unten noch je eine Platte aus Acrylglas. Die End-Elektroden sind aus verschiedenen Messingrohren und Platten zusammengesetzt, wobei die einzelnen Teile für eine bessere Stabilität vor dem Verlöten in einander geschoben wurden. Die Entladungsröhre aus Borosilikat-Glas ist 40 cm lang, hat einen Innendurchmesser von etwa 8 mm und eine Wandstärke von etwa 1 mm. Sie passt genau in die Elektroden-Röhren und wird mit Silikonmasse und Schrumpfschlauch gegen diese abgedichtet. Die Funkenstrecke bereitete die meisten Probleme, da sie nicht den Rahmen sprengen sollte, den die beiden Alu-Profile vorgaben. Die Pulsschaltung entspricht diesem Schaltplan. Die untere Schaltung zeigt wie sie im Laserkopf aufgebaut ist.

für eine größere Darstellung in einem neuen Fenster
aufs Bild klicken
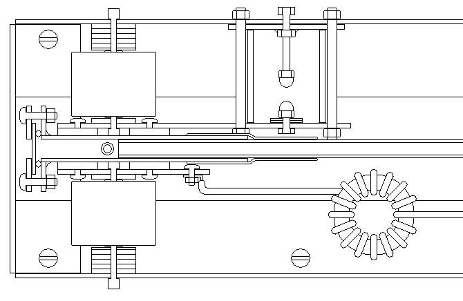
Hier ist die Auskoppelseite des Lasers zu sehen. Die mit Messinglot hart gelötete End-Elektrode sitzt auf einem Elektrodenhalter. Die beiden braunen Zylinder sind 50 kV 910 pF Doorknop-Kondensatoren. Das weiße Ding mit den Messingplatten ist die Funkenstrecke. Diese Zeichnung zeigt den schematischen Aufbau der Auskoppelseite, wie er schon im Voraus geplant war.

für eine größere Darstellung in einem neuen Fenster
aufs Bild klicken
Die Rückseite mit dem Alu-Spiegel als HR und Ladewiderständen. Der rote Schlauch führt direkt zur Vakuumpumpe. Aus Isolationsgründen wurden weiße PVC-Winkel an den Enden des Aufbaus unter den Spiegelhalterungen befestigt.

für eine größere Darstellung in einem neuen Fenster
aufs Bild klicken
Der Alu-Plan-Spiegel.

für eine größere Darstellung in einem neuen Fenster
aufs Bild klicken
Dieses Bild zeigt den Blick in die Laserröhre. Der Alu-Spiegel wurde bereits eingesetzt. Man erkennt nicht viel. Aber es reicht aus, um den Spiegel grob zu justieren.

für eine größere Darstellung in einem neuen Fenster
aufs Bild klicken
Um den Spiegel genauer einzustellen, wurde der Strahl eines Helium-Neon-Lasers durch die Röhre geleitet und dessen Reflektion auf einem Blatt Papier betrachtet. Auf diese Weise war es allerdings nahezu unmöglich eine genaue Justage vorzunehmen, da die Glasröhre mit 8 mm einen ziemlich großen Innendurchmesser hat und so der Laserstrahl auch dann noch auf der Einkoppelseite wieder austritt, wenn er schief durch die Röhre läuft.

für eine größere Darstellung in einem neuen Fenster
aufs Bild klicken
Hier ist der Spot des HeNe-Lasers zu sehen. Das Auskoppelfenster wurde noch nicht eingesetzt. Zugegeben, der Aufbau ist recht simpel, aber selbst mit einer sauberen optischen Bank wäre die Justage sehr aufwändig und wohl ungenau gewesen.

für eine größere Darstellung in einem neuen Fenster
aufs Bild klicken
Der Testaufbau ist hier zu sehen. Laserkopf (vorne) , Drosselventil (hinten/links) , ZVS-Hochspannungsversorgung (hinten/Mitte) , Vakuumpumpe (hinten/rechts). Der im Ölglas befindliche Diodensplitttrafo liefert eine Spannung von 15-20 kV, was gerade so ausreicht. Aus Sicherheitsgründen wurden die Kondensatoren während der Ruhephasen mit Alufolie-Streifen kurz geschlossen.

Tests:
Die Spannung von geschätzten 15-40 kV, die für dieses Projekt benötigt wurde, war mit dem 8KV-Neon-Trafo nicht zu erreichen und so musste für das Projekt eine eigene Hochspannungsquelle her. Aus diesem Grund wurde die ZVS-Ansteuerung gebaut, wie sie im Hochspannungsteil dieser Webseite näher behandelt wird. Da der Laser bei Unterdruck arbeitet und nicht absolut vakuumdicht aufgebaut ist, wird eine Vakuumpumpe zur Erhaltung des benötigten Unterdrucks verwendet. Auf der Gegenseite ist ein Gas-Einlassventil angeschlossen, das zur Regulierung des Drucks aber nur bedingt geeignet ist. Die ursprünglich vorgesehene Ladedrossel erfüllte ihre Aufgabe überhaupt nicht und wurde dann durch drei 10 kOhm Widerstände ersetzt.

für eine größere Darstellung in einem neuen Fenster
aufs Bild klicken
Einer der ersten Laserspots ist hier zu sehen. Das Foto wurde um die Mittagszeit bei Sonnenschein und einer kurzen Aufnahmezeit gemacht. Der Laser war noch nicht optimiert und das Papier fluoreszierte relativ schlecht. Der Laserspot hebt sich sehr deutlich vom schwachen diffusen violetten Leuchten ab.

für eine größere Darstellung in einem neuen Fenster
aufs Bild klicken
Jetzt funzt der Laser richtig. Auch wenn der Strahl ziemlich fett ist, so fett wie abgebildet, ist er dann doch nicht.

für eine größere Darstellung in einem neuen Fenster
aufs Bild klicken
Der Strahl wurde nah am Auskoppelfenster fokussiert. Der Spot hat einen Durchmesser von 2-3 mm.